Giải bài 3.24 trang 81 Chuyên đề học tập Toán 11 Kết nối tri thức
Tổng quan nội dung
Giải bài 3.24 trang 81 Chuyên đề học tập Toán 11 Kết nối tri thức
Bài 3.24 trang 81 Chuyên đề học tập Toán 11 Kết nối tri thức là một bài tập quan trọng giúp học sinh rèn luyện kỹ năng về đạo hàm và ứng dụng của đạo hàm trong việc khảo sát hàm số. Bài giải chi tiết dưới đây sẽ giúp các em hiểu rõ phương pháp giải và áp dụng vào các bài tập tương tự.
tusach.vn cung cấp lời giải chi tiết, dễ hiểu, cùng với các lưu ý quan trọng để giúp các em nắm vững kiến thức và đạt kết quả tốt trong môn Toán.
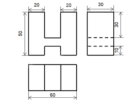
Một vật thể được biểu diễn trên giấy kẻ ô tam giác đều như trong Hình 3.54
Đề bài
Một vật thể được biểu diễn trên giấy kẻ ô tam giác đều như trong Hình 3.54. Quy ước chiều dài mỗi cạnh của tam giác đều là 10 mm, hãy lập bản vẽ kĩ thuật của vật thể đó và tính thể tích của nó.

Phương pháp giải - Xem chi tiết
Để lập bản vẽ kĩ thuật cho một vật thể ta thực hiện các bước sau:
- Quan sát vật thể, phân tích hình dạng và chọn các hướng chiếu vuông góc với các mặt của vật thể.
- Chọn tỉ lệ thích hợp với khổ giấy và kích thước vật thể. Bố trí ba hình chiếu cân đối trên bản vẽ theo các hình chữ nhật bao ngoài các hình chiếu.
- Vẽ ba hình chiếu từng phần của vật thể với các đường gióng tương ứng từ tổng quát đến chi tiết.
- Tô đậm các nét thấy của vật thể trên các hình chiếu, dùng nét đứt để biểu diễn các đường bao khuất.
- Kẻ các đường gióng kích thước, đường kích thước và ghi số kích thước trên các hình chiếu.
- Kẻ khung vẽ, khung tên, ghi các nội dung của khung tên.
Lời giải chi tiết
Bước 1: Nhận thấy rằng vật thể có dạng khối chữ H được bao bởi một hình hộp chữ nhật, hai phần rãnh cũng là hình hộp chữ nhật.

Bước 2: Chọn các hướng chiếu lần lượt vuông góc với mặt trước, mặt trên và mặt bên trái của vật thể.

Bước 3: Lần lượt vẽ hình chiếu vuông góc của hình hộp chữ nhật bao bên ngoài vật thể, của khối chữ H và của rãnh hộp chữ nhật.


Bước 4: Xóa các nét thừa, chỉnh sửa các nét vẽ theo quy tắc: các đường thấy vẽ bằng nét liền; các đường khuất vẽ bằng nét đứt. Ghi các kích thước của vật thể trên các hình chiếu.

Bước 5: Vẽ hình chiếu trục đo vuông góc đều của vật thể.


Bước 6: Hoàn thành khung tên, khung bản vẽ để được bản vẽ cuối cùng có dạng như sau:

Ta có: Thể tích của giá chữ H bằng hiệu thể tích của hình hộp chữ nhật bao ngoài và thể tích của hai rãnh hộp chữ nhật.
Thể tích hình hộp chữ nhật bao ngoài là: 60 . 30 . 50 = 90 000 (mm3).
Thể tích rãnh hộp chữ nhật thứ nhất là: 30 . 20 . 30 = 18 000 (mm3).
Thể tích rãnh hộp chữ nhật thứ hai là: 20 . 30 . 10 = 6 000 (mm3).
Vậy thể tích của giá chữ H là: 90 000 – 18 000 – 6 000 = 66 000 (mm3).
Giải bài 3.24 trang 81 Chuyên đề học tập Toán 11 Kết nối tri thức: Hướng dẫn chi tiết
Bài 3.24 trang 81 Chuyên đề học tập Toán 11 Kết nối tri thức yêu cầu học sinh giải một bài toán liên quan đến việc khảo sát hàm số bằng đạo hàm. Để giải bài này, chúng ta cần nắm vững các bước sau:
- Xác định tập xác định của hàm số.
- Tính đạo hàm cấp nhất của hàm số.
- Tìm các điểm cực trị của hàm số. (Giải phương trình đạo hàm bằng 0)
- Lập bảng biến thiên của hàm số.
- Kết luận về tính đơn điệu, cực trị và giới hạn của hàm số.
Phân tích bài toán cụ thể (Ví dụ minh họa)
Giả sử bài toán yêu cầu khảo sát hàm số y = x3 - 3x2 + 2. Chúng ta sẽ tiến hành giải như sau:
Bước 1: Tập xác định
Hàm số y = x3 - 3x2 + 2 có tập xác định là D = ℝ (tập hợp tất cả các số thực).
Bước 2: Đạo hàm cấp nhất
y' = 3x2 - 6x
Bước 3: Tìm điểm cực trị
Giải phương trình y' = 0:
3x2 - 6x = 0 ⇔ 3x(x - 2) = 0
Vậy, x = 0 hoặc x = 2
Bước 4: Lập bảng biến thiên
| x | -∞ | 0 | 2 | +∞ |
|---|---|---|---|---|
| y' | + | - | + | |
| y | ↗ | ↘ | ↗ |
Bước 5: Kết luận
- Hàm số đồng biến trên các khoảng (-∞; 0) và (2; +∞).
- Hàm số nghịch biến trên khoảng (0; 2).
- Hàm số đạt cực đại tại x = 0, giá trị cực đại là y = 2.
- Hàm số đạt cực tiểu tại x = 2, giá trị cực tiểu là y = -2.
Lưu ý quan trọng khi giải bài tập
- Luôn kiểm tra lại các bước tính toán đạo hàm để tránh sai sót.
- Vẽ đồ thị hàm số để kiểm tra kết quả và hiểu rõ hơn về tính chất của hàm số.
- Luyện tập thường xuyên với các bài tập tương tự để nắm vững phương pháp giải.
Các bài tập tương tự
Để củng cố kiến thức, các em có thể tham khảo thêm các bài tập sau:
- Bài 3.25 trang 81 Chuyên đề học tập Toán 11 Kết nối tri thức
- Bài 3.26 trang 82 Chuyên đề học tập Toán 11 Kết nối tri thức
tusach.vn hy vọng với hướng dẫn chi tiết này, các em sẽ tự tin giải quyết bài 3.24 trang 81 Chuyên đề học tập Toán 11 Kết nối tri thức và đạt kết quả tốt trong môn học. Chúc các em học tập tốt!