Giải bài 3.16 trang 79 Chuyên đề học tập Toán 11 Kết nối tri thức
Tổng quan nội dung
Giải bài 3.16 trang 79 Chuyên đề học tập Toán 11 Kết nối tri thức
Bài 3.16 trang 79 Chuyên đề học tập Toán 11 Kết nối tri thức là một bài tập quan trọng giúp học sinh rèn luyện kỹ năng về đạo hàm và ứng dụng của đạo hàm trong việc khảo sát hàm số.
Tusach.vn cung cấp lời giải chi tiết, dễ hiểu, giúp các em học sinh nắm vững kiến thức và tự tin giải các bài tập tương tự.
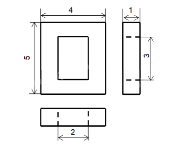
Hãy chọn một vật thể đơn giản theo ý thích của mình và lập bản vẽ kĩ thuật cho vật thể đó.
Đề bài
Hãy chọn một vật thể đơn giản theo ý thích của mình và lập bản vẽ kĩ thuật cho vật thể đó.
Phương pháp giải - Xem chi tiết
HS chọn bản vẽ theo ý thích để lập bản vẽ kĩ thuật
Khi lập bản vẽ kĩ thuật ta thực hiện theo các bước sau:
Bước 1: Quan sát vật thể và phân tích vật thể thành các hình khối đơn giản.
Bước 2: Chọn cac hướng chiếu phù hợp, thường là các hướng vuông góc với các mặt của vật thể.
Bước 3: Vẽ hình chiếu vuông góc của các hình khối cấu tạo nên vật thể.
Bước 4: Xóa cac nét thừa, chỉnh sửa các nét vẽ theo đúng tiêu chuẩn và ghi kích thước trên các hình chiếu.
Bước 5: Từ ba hình chiếu vuông góc vừa vẽ, vẽ hình chiếu trục đo vuông góc đều của vật thể.
Bước 6: Kẻ khung bản vẽ, khung tên, ghi các nội dung vào khung tên để hoàn thành bản vẽ.
Lời giải chi tiết
Chọn vật thể hộp chữ nhật rỗng giữa. Quy ước mỗi cạnh của tam giác đều có chiều dài 1 cm.

Lập bản vẽ kĩ thuật:
Bước 1: Nhận thấy rằng vật thể có dạng khối hộp chữ nhật rỗng được bao bởi một hình hộp chữ nhật, phần rãnh cũng là hình hộp chữ nhật.

Bước 2: Chọn các hướng chiếu lần lượt vuông góc với mặt trước, mặt trên và mặt bên trái của vật thể.

Bước 3: Lần lượt vẽ hình chiếu vuông góc của hình hộp chữ nhật bao bên ngoài vật thể, của khối hộp chữ nhật rỗng và của rãnh hộp chữ nhật.

Bước 4: Xóa các nét thừa, chỉnh sửa các nét vẽ theo quy tắc: các đường thấy vẽ bằng nét liền; các đường khuất vẽ bằng nét đứt. Ghi các kích thước của vật thể trên các hình chiếu.

Bước 5: Vẽ hình chiếu trục đo vuông góc đều của vật thể.


Bước 6: Hoàn thành khung tên, khung bản vẽ để được bản vẽ cuối cùng có dạng như sau:

Giải bài 3.16 trang 79 Chuyên đề học tập Toán 11 Kết nối tri thức: Hướng dẫn chi tiết và dễ hiểu
Bài 3.16 trang 79 Chuyên đề học tập Toán 11 Kết nối tri thức yêu cầu học sinh vận dụng kiến thức về đạo hàm để giải quyết một bài toán thực tế liên quan đến việc tìm giá trị lớn nhất, giá trị nhỏ nhất của hàm số. Để giải bài tập này một cách hiệu quả, chúng ta cần nắm vững các bước sau:
- Xác định hàm số: Đọc kỹ đề bài để xác định chính xác hàm số cần khảo sát.
- Tìm tập xác định của hàm số: Xác định miền giá trị mà hàm số có thể nhận.
- Tính đạo hàm cấp nhất: Tính đạo hàm f'(x) của hàm số.
- Tìm điểm dừng: Giải phương trình f'(x) = 0 để tìm các điểm dừng của hàm số.
- Khảo sát dấu của đạo hàm cấp nhất: Xác định khoảng đồng biến, nghịch biến của hàm số dựa vào dấu của f'(x).
- Tìm cực trị: Xác định các điểm cực đại, cực tiểu của hàm số.
- Tính giá trị của hàm số tại các điểm cực trị và biên: Tính f(x) tại các điểm cực trị và biên của tập xác định.
- Kết luận: So sánh các giá trị để tìm giá trị lớn nhất, giá trị nhỏ nhất của hàm số trên tập xác định.
Lời giải chi tiết bài 3.16 trang 79
Để minh họa, chúng ta cùng xem xét lời giải chi tiết cho bài 3.16 trang 79 Chuyên đề học tập Toán 11 Kết nối tri thức (giả sử bài toán cụ thể là tìm giá trị lớn nhất và nhỏ nhất của hàm số f(x) = x3 - 3x2 + 2 trên đoạn [-1; 3]):
- Hàm số: f(x) = x3 - 3x2 + 2
- Tập xác định: [-1; 3]
- Đạo hàm cấp nhất: f'(x) = 3x2 - 6x
- Điểm dừng: 3x2 - 6x = 0 => x = 0 hoặc x = 2
- Khảo sát dấu của đạo hàm cấp nhất:
- x < 0: f'(x) > 0 (hàm số đồng biến)
- 0 < x < 2: f'(x) < 0 (hàm số nghịch biến)
- x > 2: f'(x) > 0 (hàm số đồng biến)
- Cực trị:
- x = 0: Điểm cực đại, f(0) = 2
- x = 2: Điểm cực tiểu, f(2) = -2
- Giá trị tại các điểm:
- f(-1) = -6
- f(0) = 2
- f(2) = -2
- f(3) = 2
- Kết luận:
- Giá trị lớn nhất của hàm số trên đoạn [-1; 3] là 2 (đạt được tại x = 0 và x = 3)
- Giá trị nhỏ nhất của hàm số trên đoạn [-1; 3] là -6 (đạt được tại x = -1)
Mẹo giải bài tập về đạo hàm và ứng dụng
- Nắm vững các công thức đạo hàm cơ bản.
- Luyện tập thường xuyên để làm quen với các dạng bài tập khác nhau.
- Sử dụng máy tính cầm tay để kiểm tra lại kết quả.
- Vẽ đồ thị hàm số để hình dung rõ hơn về sự biến thiên của hàm số.
Tusach.vn – Đồng hành cùng bạn học Toán 11
Tusach.vn luôn cập nhật lời giải chi tiết và chính xác cho tất cả các bài tập trong sách giáo khoa Toán 11 Kết nối tri thức. Hãy truy cập Tusach.vn để học Toán 11 hiệu quả hơn!