Giải bài 3.14 trang 79 Chuyên đề học tập Toán 11 Kết nối tri thức
Tổng quan nội dung
Giải bài 3.14 trang 79 Chuyên đề học tập Toán 11 Kết nối tri thức
Bài 3.14 trang 79 Chuyên đề học tập Toán 11 Kết nối tri thức là một bài tập quan trọng giúp học sinh rèn luyện kỹ năng về đạo hàm và ứng dụng của đạo hàm trong việc khảo sát hàm số.
Tusach.vn cung cấp lời giải chi tiết, dễ hiểu, giúp các em học sinh nắm vững kiến thức và tự tin giải các bài tập tương tự.
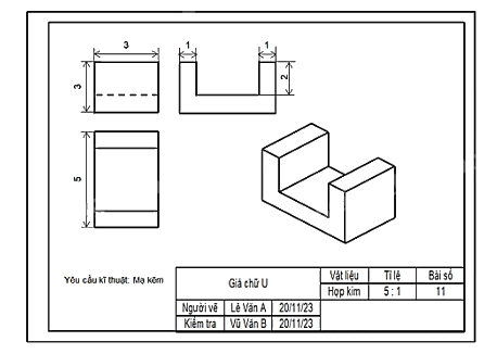
Lập bản vẽ kĩ thuật của vật thể giá chữ U được biểu diễn trên giấy kẻ ô tam giác đều trong Hình 3.49.
Đề bài
Lập bản vẽ kĩ thuật của vật thể giá chữ U được biểu diễn trên giấy kẻ ô tam giác đều trong Hình 3.49. Quy ước mỗi cạnh của tam giác đều có chiều dài là 1 cm.

Phương pháp giải - Xem chi tiết
Khi lập bản vẽ kĩ thuật ta thực hiện theo các bước sau:
Bước 1: Quan sát vật thể và phân tích vật thể thành các hình khối đơn giản.
Bước 2: Chọn cac hướng chiếu phù hợp, thường là các hướng vuông góc với các mặt của vật thể.
Bước 3: Vẽ hình chiếu vuông góc của các hình khối cấu tạo nên vật thể.
Bước 4: Xóa cac nét thừa, chỉnh sửa các nét vẽ theo đúng tiêu chuẩn và ghi kích thước trên các hình chiếu.
Bước 5: Từ ba hình chiếu vuông góc vừa vẽ, vẽ hình chiếu trục đo vuông góc đều của vật thể.
Bước 6: Kẻ khung bản vẽ, khung tên, ghi các nội dung vào khung tên để hoàn thành bản vẽ.
Lời giải chi tiết
Bước 1: Nhận thấy rằng vật thể có dạng khối chữ U được bao bởi một hình hộp chữ nhật, phần rãnh cũng là hình hộp chữ nhật.

Bước 2: Chọn các hướng chiếu lần lượt vuông góc với mặt trước, mặt trên và mặt bên trái của vật thể.

Bước 3: Lần lượt vẽ hình chiếu vuông góc của hình hộp chữ nhật bao bên ngoài vật thể, của khối chữ U và của rãnh hộp chữ nhật.


c)
Bước 4: Xóa các nét thừa, chỉnh sửa các nét vẽ theo quy tắc: các đường thấy vẽ bằng nét liền; các đường khuất vẽ bằng nét đứt. Ghi các kích thước của vật thể trên các hình chiếu.

Bước 5: Vẽ hình chiếu trục đo vuông góc đều của vật thể.


Bước 6: Hoàn thành khung tên, khung bản vẽ để được bản vẽ cuối cùng có dạng như sau:

Giải bài 3.14 trang 79 Chuyên đề học tập Toán 11 Kết nối tri thức: Hướng dẫn chi tiết và dễ hiểu
Bài 3.14 trang 79 Chuyên đề học tập Toán 11 Kết nối tri thức yêu cầu học sinh giải một bài toán liên quan đến việc tìm đạo hàm và sử dụng đạo hàm để khảo sát hàm số. Để giải bài toán này một cách hiệu quả, chúng ta cần nắm vững các kiến thức cơ bản về đạo hàm, bao gồm:
- Định nghĩa đạo hàm: Hiểu rõ đạo hàm của một hàm số tại một điểm là gì và cách tính đạo hàm.
- Các quy tắc tính đạo hàm: Nắm vững các quy tắc tính đạo hàm của tổng, hiệu, tích, thương và hàm hợp.
- Đạo hàm của các hàm số cơ bản: Biết đạo hàm của các hàm số thường gặp như hàm số đa thức, hàm số lượng giác, hàm số mũ và hàm số logarit.
- Ứng dụng của đạo hàm: Sử dụng đạo hàm để tìm cực trị, khoảng đơn điệu và điểm uốn của hàm số.
Lời giải chi tiết bài 3.14 trang 79
Để giúp các em học sinh hiểu rõ hơn về cách giải bài 3.14 trang 79, Tusach.vn xin trình bày lời giải chi tiết như sau:
Đề bài: (Giả sử đề bài là: Cho hàm số y = x3 - 3x2 + 2. Tìm các điểm cực trị của hàm số.)
Lời giải:
- Tính đạo hàm cấp nhất: y' = 3x2 - 6x
- Tìm các điểm làm đạo hàm bằng 0: 3x2 - 6x = 0 => x = 0 hoặc x = 2
- Lập bảng biến thiên:
x -∞ 0 2 +∞ y' + - + y ↗ ↘ ↗ - Kết luận: Hàm số đạt cực đại tại x = 0, ycđ = 2 và đạt cực tiểu tại x = 2, yct = -2.
Mở rộng và bài tập tương tự
Để củng cố kiến thức về đạo hàm và ứng dụng của đạo hàm, các em có thể tham khảo thêm các bài tập tương tự sau:
- Bài 3.15 trang 79 Chuyên đề học tập Toán 11 Kết nối tri thức
- Bài 3.16 trang 80 Chuyên đề học tập Toán 11 Kết nối tri thức
Ngoài ra, các em có thể tìm kiếm thêm các tài liệu tham khảo khác trên Tusach.vn để nâng cao kiến thức và kỹ năng giải toán.
Lưu ý khi giải bài tập về đạo hàm
Khi giải các bài tập về đạo hàm, các em cần lưu ý những điều sau:
- Đọc kỹ đề bài và xác định đúng yêu cầu của bài toán.
- Nắm vững các quy tắc tính đạo hàm và đạo hàm của các hàm số cơ bản.
- Sử dụng đạo hàm để tìm cực trị, khoảng đơn điệu và điểm uốn của hàm số một cách chính xác.
- Kiểm tra lại kết quả để đảm bảo tính đúng đắn.
Tusach.vn hy vọng rằng với lời giải chi tiết và hướng dẫn cụ thể này, các em học sinh sẽ tự tin hơn trong việc giải bài 3.14 trang 79 Chuyên đề học tập Toán 11 Kết nối tri thức và các bài tập tương tự. Chúc các em học tập tốt!