Giải mục 1 trang 50, 51, 52, 53, 54, 55, 56, 57 Chuyên đề học tập Toán 11 - Cánh diều
Tổng quan nội dung
Giải mục 1 trang 50-57 Toán 11 Cánh Diều
Chào mừng các em học sinh đến với lời giải chi tiết mục 1 trang 50, 51, 52, 53, 54, 55, 56, 57 trong Chuyên đề học tập Toán 11 - Cánh Diều.
Tusach.vn luôn đồng hành cùng các em trong quá trình học tập, cung cấp đáp án chính xác và dễ hiểu nhất.
Hãy cùng khám phá lời giải ngay dưới đây để nắm vững kiến thức và tự tin hơn trong các bài kiểm tra!
Cho mặt phẳng (P), điểm M, đoạn thẳng AB và đường thẳng a. Xác định hình chiếu vuông góc trên mặt phẳng (P) của:
Luyện tập 1
Khối hộp chữ nhật ở Hình 16 có các cạnh song song hoặc vuông góc với các tia OX, OY, OZ. Theo phương pháp góc chiếu thứ nhất, bản vẽ nào ở Hình 17 biểu diễn cho khối hộp chữ nhật đó?

Phương pháp giải:
Phương pháp góc chiếu thứ nhất là phương pháp biểu diễn các hình chiếu bằng, hình chiếu xạnh, hình chiếu đứng của vật thể trên cùng một mặt phẳng (bản vẽ) theo thứ tự trong hình 9.

Lời giải chi tiết:
Theo phương pháp góc chiếu thứ nhất, bản vẽ D ở Hình 17 biểu diễn cho khối hộp chữ nhật đã cho ở Hình 16.
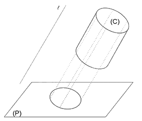
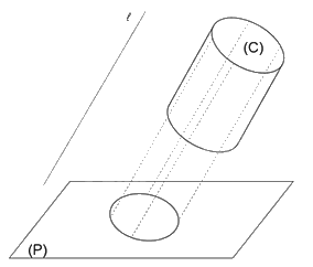
Luyện tập 2
Cho hình trụ có đáy trên là đường tròn (C), đường thẳng ℓ song song với đường sinh của hình trụ, mặt phẳng (P) không song song với mặt đáy của hình trụ. Hãy xác định hình chiếu song song của đường tròn (C) trên mặt phẳng (P) theo phương ℓ.
Phương pháp giải:
Hình biểu diễn của một hình H trong không gian là hình chiếu song song của hình H trên một mặt phẳng theo một phương chiếu nào đó hoặc hình đồng dạng với hình chiếu đó.
Lời giải chi tiết:
Lấy các điểm thuộc đường tròn đáy của hình trụ và xác định hình chiếu của các điểm đó trên mặt phẳng (P) theo phương ℓ. Khi đó ta được hình chiếu song song của đường tròn (C) trên mặt phẳng (P) theo phương ℓ như hình vẽ dưới đây.

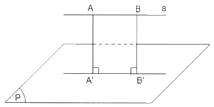
Hoạt động 2
Cho mặt phẳng (P) và đường thẳng ℓ cắt mặt phẳng (P). Cho điểm M, đoạn thẳng AB và đường thẳng a. Xác định hình chiếu song song trên mặt phẳng (P) theo phương ℓ của:
a) Điểm M;
b) Đoạn thẳng AB;
c) Đường thẳng a.
Phương pháp giải:
Trong không gian, cho mặt phẳng \(\left( P \right)\)và đường thẳng \(l\) cắt \(\left( P \right)\). Phép đặt tương ứng mỗi điểm M trong không gian với điểm M’ của mặt phẳng \(\left( P \right)\) sao cho MM’ song song hoặc trùng với \(l\) được gọi là phép chiếu song song lên mặt phẳng \(\left( P \right)\) theo phương \(l\).
Lời giải chi tiết:
a)
+) TH1: Điểm M thuộc mặt phẳng (P) thì hình chiếu song song của điểm M trên mặt phẳng (P) theo phương ℓ là chính nó.
+) TH2: Điểm M thuộc đường thẳng ℓ (M không thuộc (P)) thì hình chiếu song song của điểm M trên mặt phẳng (P) theo phương ℓ là giao điểm M' của ℓ và (P).

+) TH3: Điểm M nằm ngoài mặt phẳng (P) và đường thẳng ℓ: Từ điểm M, kẻ đường thẳng song song với ℓ, đường thẳng này cắt mặt phẳng (P) tại M'. Vậy M' là hình chiếu song song của điểm M trên mặt phẳng (P) theo phương ℓ.

b)
+) TH1: Đoạn thẳng AB nằm trong mặt phẳng (P) thì hình chiếu song song của đoạn thẳng AB trên mặt phẳng (P) theo phương ℓ là chính nó.
+) TH2: Đoạn thẳng AB nằm trên đường thẳng ℓ thì hình chiếu song song của đoạn thẳng AB trên mặt phẳng (P) theo phương ℓ là giao điểm M' của ℓ và (P).

+) TH3: Đoạn thẳng AB song song với ℓ thì hình chiếu song song của đoạn thẳng AB trên mặt phẳng (P) theo phương ℓ là giao điểm M' của đường thẳng AB với mặt phẳng (P).

+) TH4: Đoạn thẳng AB thỏa mãn đường thẳng AB không song song hoặc trùng với ℓ và đoạn thẳng AB không nằm trong mặt phẳng (P).
Gọi A', B' lần lượt là hình chiếu song song của A, B trên mặt phẳng (P) theo phương ℓ.
Khi đó hình chiếu song song đoạn thẳng AB trên mặt phẳng (P) theo phương ℓ là đoạn thẳng A'B'.

c)
+) TH1: Đường thẳng a nằm trong mặt phẳng (P) thì hình chiếu song song của đường thẳng a trên mặt phẳng (P) theo phương ℓ là chính nó.
+) TH2: Đường thẳng a trùng với đường thẳng ℓ thì hình chiếu song song của đường thẳng a trên mặt phẳng (P) theo phương ℓ là giao điểm M' của ℓ và (P).

+) TH3: Đường thẳng a song song với ℓ thì hình chiếu song song của đường thẳng a trên mặt phẳng (P) theo phương ℓ là giao điểm M' của đường thẳng a với mặt phẳng (P).

+) TH4: Đường thẳng a không song song hoặc trùng với ℓ và đường thẳng a không nằm trong mặt phẳng (P).
Lấy hai điểm A, B bất kì trên đường thẳng a. Gọi A', B' lần lượt là hình chiếu song song của A, B trên mặt phẳng (P) theo phương ℓ.
Khi đó hình chiếu song song đường thẳng a trên mặt phẳng (P) theo phương ℓ là đường thẳng a' đi qua hai điểm A', B'.

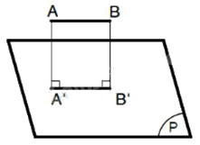
Hoạt động 1
Cho mặt phẳng (P), điểm M, đoạn thẳng AB và đường thẳng a. Xác định hình chiếu vuông góc trên mặt phẳng (P) của:
a) Điểm M;
b) Đoạn thẳng AB;
c) Đường thẳng a.
Phương pháp giải:
Để tìm hình chiếu vuông góc của một điểm A nằm ngoài mặt phẳng (P), từ điểm đó hạ đường thẳng vuông góc với mặt phẳng (P) tại H. Khi đó, H chính là hình chiếu vuông góc của A lên mặt phẳng (P).
Lời giải chi tiết:
a)
+) TH1: Điểm M thuộc mặt phẳng (P) thì hình chiếu vuông góc của M lên mặt phẳng (P) là chính nó.
+) TH2: Điểm M không thuộc mặt phẳng (P).
Từ M kẻ đường thẳng vuông góc với mặt phẳng (P), đường thẳng này cắt mặt phẳng (P) tại H. Vậy H là hình chiếu vuông góc của điểm M lên mặt phẳng (P).

b) Tùy theo vị trí của đoạn thẳng so với mặt phẳng hình chiếu, ta có 3 trường hợp:
+) TH1: Đoạn thẳng xiên với mặt phẳng hình chiếu: hình chiếu của nó là đoạn thẳng không song song và có độ dài không bằng nó (A'B' < AB).

+) TH2: Đoạn thẳng song song với mặt phẳng hình chiếu: hình chiếu của nó là đoạn thẳng song song và có độ dài bằng nó (A'B' = AB).

+) TH3: Đoạn thẳng vuông góc với mặt phẳng hình chiếu: hình chiếu của nó là một điểm (A' ≡ B').

c)
+) TH1: Đường thẳng a nằm trong mặt phẳng (P) thì hình chiếu vuông góc của đường thẳng a trên mặt phẳng (P) là chính nó.
+) TH2: Đường thẳng a cắt mặt phẳng (P).
Gọi M là giao điểm của đường thẳng a và mặt phẳng (P). Lấy điểm B khác M thuộc đường thẳng a, xác định hình chiếu vuông góc H của B trên mặt phẳng (P). Khi đó hình chiếu vuông góc của đường thẳng a lên mặt phẳng (P) là đường thẳng đi qua hai điểm M và H.

Tổng quát:

+) TH3: Đường thẳng a song song với mặt phẳng (P).
Lấy hai điểm A, B khác nhau trên đường thẳng a, xác định hình chiếu vuông góc A', B' lần lượt của A và B trên mặt phẳng (P). Khi đó hình chiếu vuông góc của đường thẳng a trên mặt phẳng (P) là đường thẳng A'B' (A'B' // a).

+) TH4: Đường thẳng a vuông góc với mặt phẳng (P).
Khi đó hình chiếu vuông của đường thẳng a trên mặt phẳng (P) là giao điểm M của a và (P).

- Hoạt động 1
- Luyện tập 1
- Hoạt động 2
- Luyện tập 2
Cho mặt phẳng (P), điểm M, đoạn thẳng AB và đường thẳng a. Xác định hình chiếu vuông góc trên mặt phẳng (P) của:
a) Điểm M;
b) Đoạn thẳng AB;
c) Đường thẳng a.
Phương pháp giải:
Để tìm hình chiếu vuông góc của một điểm A nằm ngoài mặt phẳng (P), từ điểm đó hạ đường thẳng vuông góc với mặt phẳng (P) tại H. Khi đó, H chính là hình chiếu vuông góc của A lên mặt phẳng (P).
Lời giải chi tiết:
a)
+) TH1: Điểm M thuộc mặt phẳng (P) thì hình chiếu vuông góc của M lên mặt phẳng (P) là chính nó.
+) TH2: Điểm M không thuộc mặt phẳng (P).
Từ M kẻ đường thẳng vuông góc với mặt phẳng (P), đường thẳng này cắt mặt phẳng (P) tại H. Vậy H là hình chiếu vuông góc của điểm M lên mặt phẳng (P).

b) Tùy theo vị trí của đoạn thẳng so với mặt phẳng hình chiếu, ta có 3 trường hợp:
+) TH1: Đoạn thẳng xiên với mặt phẳng hình chiếu: hình chiếu của nó là đoạn thẳng không song song và có độ dài không bằng nó (A'B' < AB).

+) TH2: Đoạn thẳng song song với mặt phẳng hình chiếu: hình chiếu của nó là đoạn thẳng song song và có độ dài bằng nó (A'B' = AB).

+) TH3: Đoạn thẳng vuông góc với mặt phẳng hình chiếu: hình chiếu của nó là một điểm (A' ≡ B').

c)
+) TH1: Đường thẳng a nằm trong mặt phẳng (P) thì hình chiếu vuông góc của đường thẳng a trên mặt phẳng (P) là chính nó.
+) TH2: Đường thẳng a cắt mặt phẳng (P).
Gọi M là giao điểm của đường thẳng a và mặt phẳng (P). Lấy điểm B khác M thuộc đường thẳng a, xác định hình chiếu vuông góc H của B trên mặt phẳng (P). Khi đó hình chiếu vuông góc của đường thẳng a lên mặt phẳng (P) là đường thẳng đi qua hai điểm M và H.

Tổng quát:

+) TH3: Đường thẳng a song song với mặt phẳng (P).
Lấy hai điểm A, B khác nhau trên đường thẳng a, xác định hình chiếu vuông góc A', B' lần lượt của A và B trên mặt phẳng (P). Khi đó hình chiếu vuông góc của đường thẳng a trên mặt phẳng (P) là đường thẳng A'B' (A'B' // a).

+) TH4: Đường thẳng a vuông góc với mặt phẳng (P).
Khi đó hình chiếu vuông của đường thẳng a trên mặt phẳng (P) là giao điểm M của a và (P).

Khối hộp chữ nhật ở Hình 16 có các cạnh song song hoặc vuông góc với các tia OX, OY, OZ. Theo phương pháp góc chiếu thứ nhất, bản vẽ nào ở Hình 17 biểu diễn cho khối hộp chữ nhật đó?

Phương pháp giải:
Phương pháp góc chiếu thứ nhất là phương pháp biểu diễn các hình chiếu bằng, hình chiếu xạnh, hình chiếu đứng của vật thể trên cùng một mặt phẳng (bản vẽ) theo thứ tự trong hình 9.

Lời giải chi tiết:
Theo phương pháp góc chiếu thứ nhất, bản vẽ D ở Hình 17 biểu diễn cho khối hộp chữ nhật đã cho ở Hình 16.
Cho mặt phẳng (P) và đường thẳng ℓ cắt mặt phẳng (P). Cho điểm M, đoạn thẳng AB và đường thẳng a. Xác định hình chiếu song song trên mặt phẳng (P) theo phương ℓ của:
a) Điểm M;
b) Đoạn thẳng AB;
c) Đường thẳng a.
Phương pháp giải:
Trong không gian, cho mặt phẳng \(\left( P \right)\)và đường thẳng \(l\) cắt \(\left( P \right)\). Phép đặt tương ứng mỗi điểm M trong không gian với điểm M’ của mặt phẳng \(\left( P \right)\) sao cho MM’ song song hoặc trùng với \(l\) được gọi là phép chiếu song song lên mặt phẳng \(\left( P \right)\) theo phương \(l\).
Lời giải chi tiết:
a)
+) TH1: Điểm M thuộc mặt phẳng (P) thì hình chiếu song song của điểm M trên mặt phẳng (P) theo phương ℓ là chính nó.
+) TH2: Điểm M thuộc đường thẳng ℓ (M không thuộc (P)) thì hình chiếu song song của điểm M trên mặt phẳng (P) theo phương ℓ là giao điểm M' của ℓ và (P).

+) TH3: Điểm M nằm ngoài mặt phẳng (P) và đường thẳng ℓ: Từ điểm M, kẻ đường thẳng song song với ℓ, đường thẳng này cắt mặt phẳng (P) tại M'. Vậy M' là hình chiếu song song của điểm M trên mặt phẳng (P) theo phương ℓ.

b)
+) TH1: Đoạn thẳng AB nằm trong mặt phẳng (P) thì hình chiếu song song của đoạn thẳng AB trên mặt phẳng (P) theo phương ℓ là chính nó.
+) TH2: Đoạn thẳng AB nằm trên đường thẳng ℓ thì hình chiếu song song của đoạn thẳng AB trên mặt phẳng (P) theo phương ℓ là giao điểm M' của ℓ và (P).

+) TH3: Đoạn thẳng AB song song với ℓ thì hình chiếu song song của đoạn thẳng AB trên mặt phẳng (P) theo phương ℓ là giao điểm M' của đường thẳng AB với mặt phẳng (P).

+) TH4: Đoạn thẳng AB thỏa mãn đường thẳng AB không song song hoặc trùng với ℓ và đoạn thẳng AB không nằm trong mặt phẳng (P).
Gọi A', B' lần lượt là hình chiếu song song của A, B trên mặt phẳng (P) theo phương ℓ.
Khi đó hình chiếu song song đoạn thẳng AB trên mặt phẳng (P) theo phương ℓ là đoạn thẳng A'B'.

c)
+) TH1: Đường thẳng a nằm trong mặt phẳng (P) thì hình chiếu song song của đường thẳng a trên mặt phẳng (P) theo phương ℓ là chính nó.
+) TH2: Đường thẳng a trùng với đường thẳng ℓ thì hình chiếu song song của đường thẳng a trên mặt phẳng (P) theo phương ℓ là giao điểm M' của ℓ và (P).

+) TH3: Đường thẳng a song song với ℓ thì hình chiếu song song của đường thẳng a trên mặt phẳng (P) theo phương ℓ là giao điểm M' của đường thẳng a với mặt phẳng (P).

+) TH4: Đường thẳng a không song song hoặc trùng với ℓ và đường thẳng a không nằm trong mặt phẳng (P).
Lấy hai điểm A, B bất kì trên đường thẳng a. Gọi A', B' lần lượt là hình chiếu song song của A, B trên mặt phẳng (P) theo phương ℓ.
Khi đó hình chiếu song song đường thẳng a trên mặt phẳng (P) theo phương ℓ là đường thẳng a' đi qua hai điểm A', B'.

Cho hình trụ có đáy trên là đường tròn (C), đường thẳng ℓ song song với đường sinh của hình trụ, mặt phẳng (P) không song song với mặt đáy của hình trụ. Hãy xác định hình chiếu song song của đường tròn (C) trên mặt phẳng (P) theo phương ℓ.
Phương pháp giải:
Hình biểu diễn của một hình H trong không gian là hình chiếu song song của hình H trên một mặt phẳng theo một phương chiếu nào đó hoặc hình đồng dạng với hình chiếu đó.
Lời giải chi tiết:
Lấy các điểm thuộc đường tròn đáy của hình trụ và xác định hình chiếu của các điểm đó trên mặt phẳng (P) theo phương ℓ. Khi đó ta được hình chiếu song song của đường tròn (C) trên mặt phẳng (P) theo phương ℓ như hình vẽ dưới đây.

Giải mục 1 trang 50-57 Toán 11 Cánh Diều: Tổng quan và hướng dẫn chi tiết
Mục 1 trong Chuyên đề học tập Toán 11 Cánh Diều tập trung vào việc ôn tập và hệ thống hóa kiến thức về đạo hàm. Đây là một phần quan trọng, nền tảng cho các kiến thức nâng cao hơn trong chương trình học. Việc nắm vững các khái niệm, định lý và kỹ năng giải bài tập trong mục này là vô cùng cần thiết.
Nội dung chính của Mục 1
- Đạo hàm của hàm số: Định nghĩa, ý nghĩa hình học và vật lý của đạo hàm.
- Các quy tắc tính đạo hàm: Quy tắc tính đạo hàm của tổng, hiệu, tích, thương và hàm hợp.
- Đạo hàm của các hàm số sơ cấp: Đạo hàm của hàm số lũy thừa, hàm số mũ, hàm số logarit, hàm số lượng giác và hàm số ngược của chúng.
- Ứng dụng của đạo hàm: Giải các bài toán liên quan đến tìm đạo hàm, xét tính đơn điệu, cực trị của hàm số.
Giải chi tiết các bài tập trang 50-57
Dưới đây là lời giải chi tiết cho từng bài tập trong Mục 1, trang 50, 51, 52, 53, 54, 55, 56, 57 của sách Toán 11 Cánh Diều:
Bài 1 (Trang 50):
(Nội dung bài tập và lời giải chi tiết)
Bài 2 (Trang 51):
(Nội dung bài tập và lời giải chi tiết)
Bài 3 (Trang 52):
(Nội dung bài tập và lời giải chi tiết)
Bài 4 (Trang 53):
(Nội dung bài tập và lời giải chi tiết)
Bài 5 (Trang 54):
(Nội dung bài tập và lời giải chi tiết)
Bài 6 (Trang 55):
(Nội dung bài tập và lời giải chi tiết)
Bài 7 (Trang 56):
(Nội dung bài tập và lời giải chi tiết)
Bài 8 (Trang 57):
(Nội dung bài tập và lời giải chi tiết)
Mẹo giải bài tập đạo hàm hiệu quả
- Nắm vững định nghĩa và các quy tắc tính đạo hàm: Đây là nền tảng cơ bản để giải quyết mọi bài toán.
- Phân tích kỹ đề bài: Xác định rõ hàm số cần tìm đạo hàm, các điều kiện ràng buộc và yêu cầu của bài toán.
- Sử dụng các công thức đạo hàm một cách linh hoạt: Áp dụng đúng công thức cho từng loại hàm số.
- Kiểm tra lại kết quả: Đảm bảo kết quả đạo hàm là chính xác và phù hợp với yêu cầu của bài toán.
Tusach.vn – Người bạn đồng hành tin cậy
Tusach.vn tự hào là một trong những trang web cung cấp lời giải bài tập Toán 11 Cánh Diều uy tín và chất lượng nhất. Chúng tôi luôn cập nhật lời giải mới nhất và chi tiết nhất để giúp các em học sinh học tập hiệu quả.
Ngoài ra, Tusach.vn còn cung cấp nhiều tài liệu học tập hữu ích khác như:
- Bài giảng video: Giúp các em hiểu rõ hơn về các khái niệm và định lý.
- Bài tập trắc nghiệm: Giúp các em luyện tập và củng cố kiến thức.
- Diễn đàn trao đổi: Nơi các em có thể trao đổi, thảo luận và học hỏi kinh nghiệm từ các bạn học sinh khác.
Chúc các em học tập tốt và đạt kết quả cao trong môn Toán!